Terbaru 24+ Denah Rumah Minimalis 3D
Poin pembahasan Terbaru 24+ Denah Rumah Minimalis 3D adalah :
Terbaru 24+ Denah Rumah Minimalis 3D Dari sini kami akan menerangkan update mengenai desain rumah minimalis yang trend waktu ini dan populer. Sebab kenyataan bahwa sesuai dengan perkembangan zaman, desain yang sangat bagus akan admin sajikan untuk Anda. Ok, inilah desain rumah minimalis terbaru yang memiliki desain kekinian saat ini.

Denah Rumah 3 Kamar Tidur Simple dan Nyaman Fimell Sumber fimell.com

33 Koleksi Desain Denah Rumah 3 Kamar Tidur Modern dan Sumber ndikhome.com

11 Denah Rumah 3 Kamar Tidur Impian RUMAH IMPIAN Sumber sun-ebank.com

27 Koleksi Denah Rumah 3 Kamar Tidur Terlengkap 2019 Sumber desainsrumahminimalis.com

33 Koleksi Desain Denah Rumah 3 Kamar Tidur Modern dan Sumber ndikhome.com

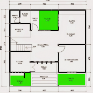
Denah rumah 3 kamar tidur 1 mushola Desain Rumah Minimalis Sumber livedesain.com

Denah rumah 3 kamar tidur 1 mushola 2 Desain Rumah Minimalis Sumber livedesain.com

20 Koleksi Denah Rumah 3 Kamar Terbaru 2019 2019 Desain Sumber www.modelkursi.co

Desain Rumah Minimalis 3 Kamar Tidur Dan Garasi Kumpulan Sumber www.tanyadokter.com

9 Denah Rumah Minimalis 3 Kamar Tidur Terbaik 2019 Sumber desainsrumahminimalis.com

Denah Rumah 3 Kamar Tidur 2 Kamar Mandi Sumber peggybraswelldesign.com

http inrumahminimalis com Denah Rumah Sederhana 3 Sumber www.pinterest.com

Denah Rumah 3 Kamar Tidur Simple dan Nyaman Fimell Sumber fimell.com

27 Koleksi Denah Rumah 3 Kamar Tidur Terlengkap 2019 Sumber desainsrumahminimalis.com

Denah Rumah 3 Kamar Tidur Simple dan Nyaman Fimell Sumber fimell.com

64 Desain Rumah Minimalis 3 Kamar Desain Rumah Minimalis Sumber rumahminimalisexpo.blogspot.com

25 desain 3D rumah minimalis 1 lantai 3 kamar tidur Sumber edesainminimalis.com

27 Koleksi Denah Rumah 3 Kamar Tidur Terlengkap 2019 Sumber desainsrumahminimalis.com

Denah Rumah Minimalis 3 Kamar Tidur Yang Efektif Sumber kreasitekno.co

33 Koleksi Desain Denah Rumah 3 Kamar Tidur Modern dan Sumber ndikhome.com

33 Koleksi Desain Denah Rumah 3 Kamar Tidur Modern dan Sumber ndikhome.com

20 Koleksi Denah Rumah 3 Kamar Terbaru 2019 2019 Desain Sumber www.modelkursi.co

Denah rumah 3 kamar tidur 1 mushola 4 Desain Rumah Minimalis Sumber livedesain.com

Rumah minimalis 3 kamar tidur dengan 2 kamar mandi Modif Sumber rumahom.blogspot.com

4 ANEKA DENAH RUMAH 3 KAMAR TIDUR 10X15 M YANG MINIMALIS Sumber www.rumahminimalispro.com

33 Koleksi Desain Denah Rumah 3 Kamar Tidur Modern dan Sumber ndikhome.com

19 Gambar Denah Rumah 3 Kamar Minimalis Terbaru Gambar Sumber gambarfurniturekeren.com

Desain Rumah Type 64 3 Kamar Tidur Jasa Desain Rumah Sumber griyadesainrumah.com

Denah Rumah 3 Kamar Tidur Simple dan Nyaman Fimell Sumber fimell.com

Denah Rumah 3 Kamar Ukuran 6x12 Terbaik dan Terbaru Sumber livedesain.com

Denah Rumah 3 Kamar Tidur 1 Mushola Dalam Rumah Terbaru Sumber livedesain.com

Denah Rumah Minimalis 3 Kamar Tidur Ukuran 7x12 Desain Sumber exposedesainrumah.blogspot.com

denah rumah type 45 3 kamar tidur 3 Desain Rumah Minimalis Sumber livedesain.com

denah rumah sederhana 1 lantai 3 kamar tidur Proyek Sumber www.pinterest.com

4 ANEKA DENAH RUMAH 3 KAMAR TIDUR 10X15 M YANG MINIMALIS Sumber www.rumahminimalispro.com
denah rumah sederhana 2 kamar tidur, desain kamar tidur, denah rumah sederhana 3 kamar tidur, desain kamar tidur plus kamar mandi dalam minimalis, denah rumah minimalis 2 kamar tidur 1 lantai, denah rumah 2 kamar 3d, desain rumah 2 kamar 2019, denah rumah 7 kamar tidur 2 lantai,
Terbaru 24+ Denah Rumah Minimalis 3D Dari sini kami akan menerangkan update mengenai desain rumah minimalis yang trend waktu ini dan populer. Sebab kenyataan bahwa sesuai dengan perkembangan zaman, desain yang sangat bagus akan admin sajikan untuk Anda. Ok, inilah desain rumah minimalis terbaru yang memiliki desain kekinian saat ini.

Denah Rumah 3 Kamar Tidur Simple dan Nyaman Fimell Sumber fimell.com
33 Koleksi Desain Denah Rumah 3 Kamar Tidur Modern dan Sumber ndikhome.com
11 Denah Rumah 3 Kamar Tidur Impian RUMAH IMPIAN Sumber sun-ebank.com
27 Koleksi Denah Rumah 3 Kamar Tidur Terlengkap 2019 Sumber desainsrumahminimalis.com

33 Koleksi Desain Denah Rumah 3 Kamar Tidur Modern dan Sumber ndikhome.com
Denah rumah 3 kamar tidur 1 mushola Desain Rumah Minimalis Sumber livedesain.com
Denah rumah 3 kamar tidur 1 mushola 2 Desain Rumah Minimalis Sumber livedesain.com

20 Koleksi Denah Rumah 3 Kamar Terbaru 2019 2019 Desain Sumber www.modelkursi.co

Desain Rumah Minimalis 3 Kamar Tidur Dan Garasi Kumpulan Sumber www.tanyadokter.com
9 Denah Rumah Minimalis 3 Kamar Tidur Terbaik 2019 Sumber desainsrumahminimalis.com

Denah Rumah 3 Kamar Tidur 2 Kamar Mandi Sumber peggybraswelldesign.com

http inrumahminimalis com Denah Rumah Sederhana 3 Sumber www.pinterest.com

Denah Rumah 3 Kamar Tidur Simple dan Nyaman Fimell Sumber fimell.com
27 Koleksi Denah Rumah 3 Kamar Tidur Terlengkap 2019 Sumber desainsrumahminimalis.com

Denah Rumah 3 Kamar Tidur Simple dan Nyaman Fimell Sumber fimell.com

64 Desain Rumah Minimalis 3 Kamar Desain Rumah Minimalis Sumber rumahminimalisexpo.blogspot.com
25 desain 3D rumah minimalis 1 lantai 3 kamar tidur Sumber edesainminimalis.com
27 Koleksi Denah Rumah 3 Kamar Tidur Terlengkap 2019 Sumber desainsrumahminimalis.com
Denah Rumah Minimalis 3 Kamar Tidur Yang Efektif Sumber kreasitekno.co
33 Koleksi Desain Denah Rumah 3 Kamar Tidur Modern dan Sumber ndikhome.com
33 Koleksi Desain Denah Rumah 3 Kamar Tidur Modern dan Sumber ndikhome.com
20 Koleksi Denah Rumah 3 Kamar Terbaru 2019 2019 Desain Sumber www.modelkursi.co
Denah rumah 3 kamar tidur 1 mushola 4 Desain Rumah Minimalis Sumber livedesain.com

Rumah minimalis 3 kamar tidur dengan 2 kamar mandi Modif Sumber rumahom.blogspot.com

4 ANEKA DENAH RUMAH 3 KAMAR TIDUR 10X15 M YANG MINIMALIS Sumber www.rumahminimalispro.com
33 Koleksi Desain Denah Rumah 3 Kamar Tidur Modern dan Sumber ndikhome.com

19 Gambar Denah Rumah 3 Kamar Minimalis Terbaru Gambar Sumber gambarfurniturekeren.com
Desain Rumah Type 64 3 Kamar Tidur Jasa Desain Rumah Sumber griyadesainrumah.com

Denah Rumah 3 Kamar Tidur Simple dan Nyaman Fimell Sumber fimell.com
Denah Rumah 3 Kamar Ukuran 6x12 Terbaik dan Terbaru Sumber livedesain.com
Denah Rumah 3 Kamar Tidur 1 Mushola Dalam Rumah Terbaru Sumber livedesain.com

Denah Rumah Minimalis 3 Kamar Tidur Ukuran 7x12 Desain Sumber exposedesainrumah.blogspot.com
denah rumah type 45 3 kamar tidur 3 Desain Rumah Minimalis Sumber livedesain.com

denah rumah sederhana 1 lantai 3 kamar tidur Proyek Sumber www.pinterest.com

4 ANEKA DENAH RUMAH 3 KAMAR TIDUR 10X15 M YANG MINIMALIS Sumber www.rumahminimalispro.com
0 Comments